Ctrl+D

Đánh dấu để lưu lại

Tất cả

    SEARCH ITEMS

  • Thư viện Autocad
  • Thư viện Sketchup
  • Hồ sơ thiết kế
  • Thư viện 3ds max
  • Thư viện Lumion
  • Thư viện Revit
  • Thư viện Map
  • Thư viện Vật liệu - HDRI
  • Giáo trình học tập
  • Đồ án kiến trúc
  • Thư viện photoshop
  • Sách - Tạp chí kiến trúc
  • Phần mềm và Plugins
  • Phối cảnh 3D nội thất
  • Phối cảnh 3D ngoại thất

6. Bản vẽ chi tiết trần thạch cao nhà phố

Trang chủ  >   Thư viện Autocad >   Bản vẽ chi tiết trần

  • 6. Bản vẽ chi tiết trần thạch cao nhà phố
    • TLKT
    • 23-09-2025
    • 8
    • 238
    • Chia sẻ bài viết này: 
    •  

    Có thể quan tâm

    Định dạng: dwg
    Dung lượng file: 450 KB


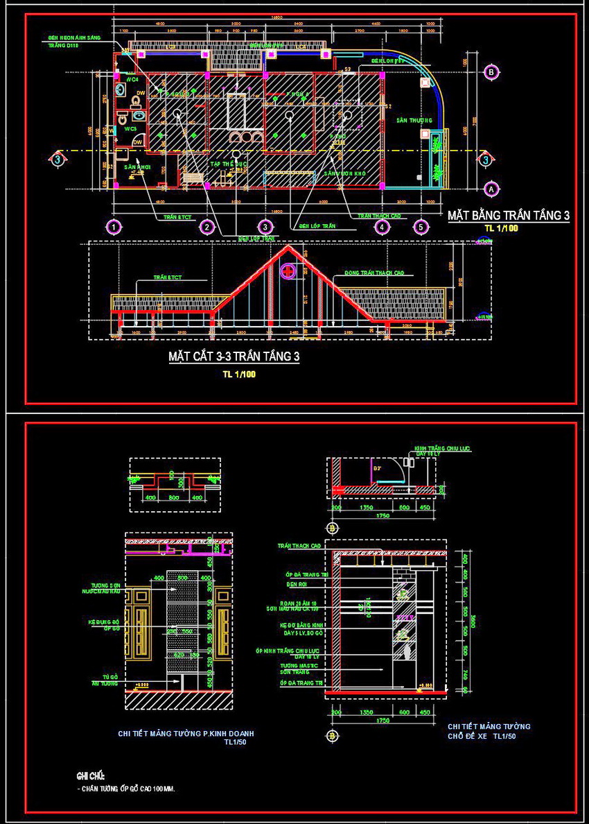
    Bản vẽ chi tiết trần thạch cao nhà phố

    Tài liệu này cung cấp một cái nhìn tổng quan và chi tiết về thiết kế kiến trúc của một tòa nhà, thông qua các bản vẽ mặt bằng trần tầng và mặt cắt.

     

    Bản vẽ trình bày chi tiết các tầng của tòa nhà với các mô tả rõ ràng về không gian chức năng như phòng bếp, WC, cầu thang và sân thượng. Mỗi bản vẽ đều được chú thích rõ ràng với các ký hiệu và tỷ lệ cụ thể.

     

    Đặc điểm nổi bật:
    - Chất lượng chuyên nghiệp: Sử dụng phần mềm thiết kế CAD với độ phân giải cao.
    - Dễ dàng sử dụng: Các phần tử và kích thước được sắp xếp và đánh dấu cẩn thận.
    - Tương thích nhiều phần mềm: Có thể được mở và chỉnh sửa bằng các phần mềm thiết kế hàng đầu như AutoCAD.
    - Tiết kiệm thời gian thiết kế: Cung cấp sẵn các bản mẫu tham khảo.

     

    Bản vẽ này ứng dụng trong các lĩnh vực như thiết kế kiến trúc, thi công công trình hay sử dụng làm tài liệu học tập cho sinh viên. Các chi tiết kỹ thuật như kích thước từng khu vực và chất liệu sử dụng đều được mô tả cụ thể, giúp dễ dàng định hình các yếu tố cần thiết khi thực hiện dự án thực tế.

     

    Giá trị chuyên nghiệp: Sản phẩm này đặc biệt hữu ích cho các chuyên gia trong ngành kiến trúc và xây dựng, phục vụ thiết kế, thi công hoặc làm tài liệu tham khảo học tập.

     

    Hãy tải về và sử dụng bản vẽ cho công việc và học tập hiệu quả.


    Khám phá thêm hàng nghìn mô hình AUTOCAD miễn phí khác!

    Hãy truy cập ngay Thư viện AUTOCAD của chúng tôi để tải về những tài nguyên tuyệt vời, giúp nâng cao chất lượng và hiệu quả công việc của bạn!

    <<<<< >>>>>

    THƯ VIỆN AUTOCAD


    Tài liệu liên quan

    Quảng cáo