Định dạng: zip
Dung lượng file: 1 MB








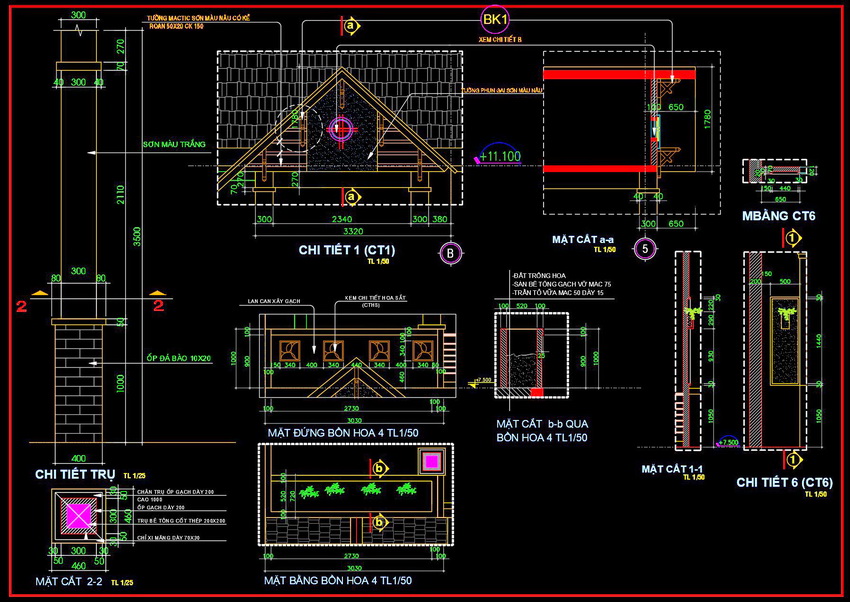
Tài liệu này cung cấp các bản vẽ chi tiết về thiết kế mái, ban công và bồn hoa, cùng với chi tiết của một số hạng mục kiến trúc khác.
Hình ảnh đầu tiên hiển thị các bản vẽ chuyên nghiệp tập trung vào cấu trúc mái, ban công và bồn hoa. Các chi tiết được thể hiện chi tiết từ mặt bằng đến mặt cắt, với kích thước và tỷ lệ rõ ràng. Đặc biệt, hình ảnh trình bày:
- Đặc điểm nổi bật:
• Chất lượng chuyên nghiệp: Được thiết kế tỉ mỉ, công phu với độ chính xác cao.
• Dễ dàng sử dụng: Các bản vẽ có thể dễ dàng áp dụng bởi các kiến trúc sư và kỹ sư.
• Tương thích nhiều phần mềm: Phù hợp với nhiều định dạng CAD phổ biến.
• Tiết kiệm thời gian thiết kế: Giúp giảm thời gian và công sức trong quá trình thiết kế.
Trong ứng dụng thực tế, những bản vẽ này giúp tăng tính thẩm mỹ cho công trình, đảm bảo độ bền vững và chính xác trong thi công. Các chi tiết như kích thước, vật liệu sử dụng đều được mô tả rõ ràng, giúp người dùng dễ dàng nắm bắt và triển khai.
Hình ảnh thứ hai tập trung vào chi tiết của các không gian phụ trợ như sàn, ống nước và cầu thang. Điều này giúp tạo nên một cái nhìn toàn diện và dễ hình dung cho các dự án xây dựng và thiết kế.
Giá trị chuyên nghiệp:
- Đối tượng sử dụng: Các chuyên gia trong lĩnh vực kiến trúc và xây dựng.
- Ứng dụng: Thiết kế, thi công, học tập, tham khảo.
Hãy tải về và sử dụng để tối ưu hóa quy trình thiết kế và xây dựng của bạn.
Khám phá thêm hàng nghìn mô hình AUTOCAD miễn phí khác!
Hãy truy cập ngay Thư viện AUTOCAD của chúng tôi để tải về những tài nguyên tuyệt vời, giúp nâng cao chất lượng và hiệu quả công việc của bạn!
<<<<< >>>>>