Định dạng: rar
Dung lượng file: 51 MB


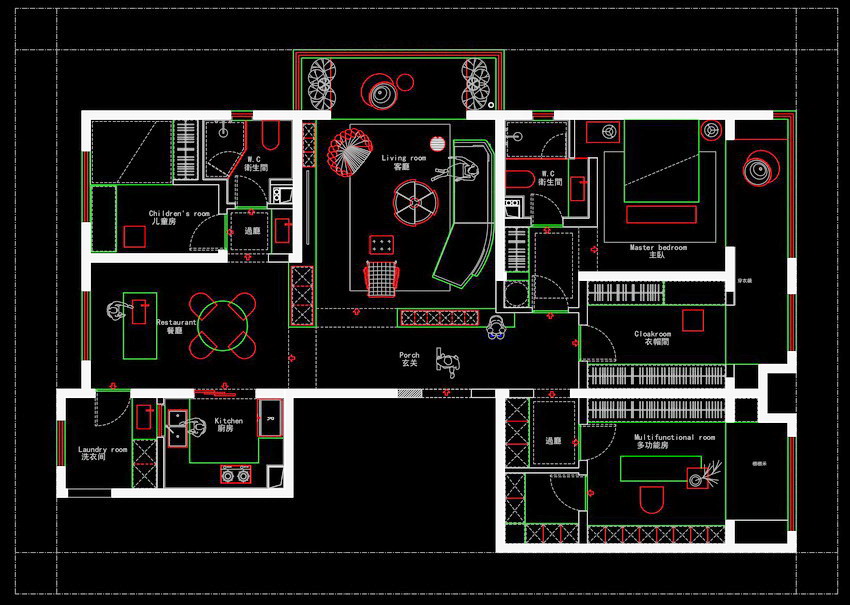
Tài liệu này cung cấp một cái nhìn chi tiết về thiết kế kiến trúc của một căn hộ hiện đại. Bản vẽ thể hiện sự phân chia không gian hợp lý và ứng dụng cao trong đời sống.
Trong các hình ảnh được cung cấp, chúng ta có thể thấy chi tiết về cách bố trí các phòng trong một căn hộ. Bản vẽ đầu tiên là sơ đồ mặt bằng với màu sắc và ký hiệu trực quan, trong khi bản vẽ thứ hai là bản vẽ kỹ thuật chi tiết hơn, cho thấy cấu trúc chính xác của các phòng.
### Đặc điểm nổi bật:
• Chất lượng chuyên nghiệp: Sử dụng các phần mềm thiết kế tiên tiến để đảm bảo độ chính xác và thẩm mỹ cao.
• Dễ dàng sử dụng: Thiết kế rõ ràng, dễ dàng điều chỉnh và ứng dụng vào các dự án thực tế.
• Tương thích nhiều phần mềm: Có thể mở trên các nền tảng thiết kế phổ biến, tiện lợi cho các kiến trúc sư và kỹ sư.
• Tiết kiệm thời gian thiết kế: Cung cấp các mẫu có sẵn để áp dụng nhanh chóng vào các dự án khác nhau.
### Ứng dụng thực tế và lợi ích sử dụng
Tài liệu này hữu ích cho các kiến trúc sư và kỹ sư trong việc phát triển dự án nhà ở hiện đại. Với sự phân chia không gian hợp lý, tài liệu giúp tối ưu hóa không gian sống, tạo ra các khu vực sinh hoạt chung thoải mái và riêng tư. Điều này không chỉ nâng cao chất lượng cuộc sống của cư dân mà còn tăng giá trị thẩm mỹ và công năng của ngôi nhà.
### Chi tiết kỹ thuật
Bản vẽ thể hiện chi tiết về kích thước và bố trí các phòng như phòng khách, phòng ngủ, bếp, và phòng đa năng. Vật liệu và thiết kế nội thất cũng được chú trọng để tạo nên một không gian sống hiện đại và tiện nghi.
### Giá trị chuyên nghiệp
Đối tượng mà tài liệu này nhắm đến là các chuyên gia trong lĩnh vực kiến trúc và xây dựng, cung cấp một công cụ hữu ích cho việc thiết kế, thi công, học tập và tham khảo.
Hãy tải về để ứng dụng vào các dự án của bạn, hy vọng đây là tài liệu hữu ích đối với mọi người.
Khám phá thêm hàng nghìn mô hình PHOTOSHOP miễn phí khác!
Hãy truy cập ngay Thư viện PHOTOSHOP của chúng tôi để tải về những tài nguyên tuyệt vời, giúp nâng cao chất lượng và hiệu quả công việc của bạn!
<<<<< >>>>>