Định dạng: rar
Dung lượng file: 83 MB









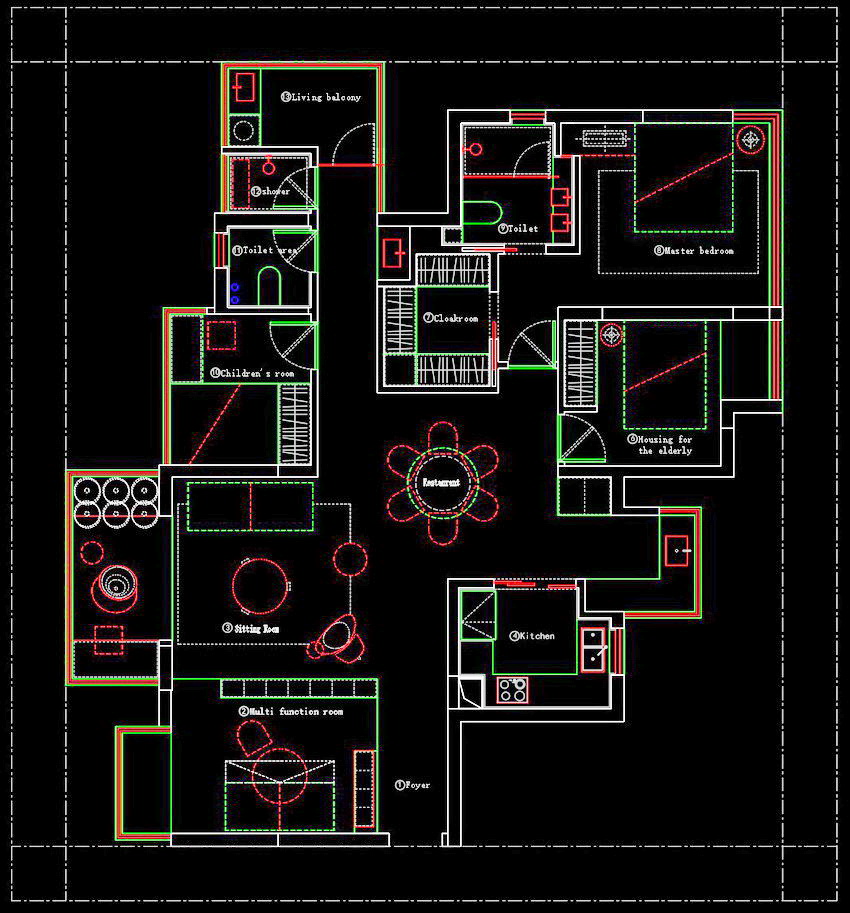
Tài liệu này cung cấp một cái nhìn chi tiết về thiết kế căn hộ hiện đại với các tiện ích tối ưu cho gia đình. Đây là mẫu thiết kế hoàn hảo, mang lại không gian sống rộng rãi và tiện nghi.
Thiết kế căn hộ bao gồm các khu vực chức năng rõ ràng và tối ưu hóa không gian sử dụng. Mỗi góc nhỏ trong nhà đều được tận dụng để tạo sự thoải mái cho gia đình.
- Đặc điểm nổi bật:
• Chất lượng chuyên nghiệp: Bản vẽ được thiết kế chi tiết và rõ ràng, dễ hiểu cho người sử dụng.
• Dễ dàng sử dụng: Các khu vực chức năng đều được bố trí hợp lý, tối ưu hóa diện tích.
• Tương thích nhiều phần mềm: Dễ dàng xử lý và chỉnh sửa với các phần mềm thiết kế hiện tại.
• Tiết kiệm thời gian thiết kế: Mẫu có sẵn giúp các kiến trúc sư nhanh chóng triển khai dự án.
Ứng dụng của căn hộ này rất linh hoạt vì nó mang đến một không gian sống hoàn hảo đáp ứng nhu cầu của các gia đình nhiều thế hệ. Với phòng khách rộng rãi, phòng ngủ chính và phụ được sắp xếp một cách tiện lợi, căn hộ còn có thêm không gian đặc biệt dành cho người cao tuổi.
Các chi tiết kỹ thuật như kích thước, vật liệu và vị trí được bố trí một cách hài hòa. Điểm nhấn trong thiết kế là phòng khách và bếp mở, tập trung vào sự kết nối giữa các thành viên trong gia đình. Cửa sổ lớn trong phòng khách đem lại ánh sáng tự nhiên, tạo năng lượng tích cực cho ngôi nhà.
Giá trị chuyên nghiệp:
Thiết kế này đặc biệt dành cho các chuyên gia trong lĩnh vực kiến trúc và xây dựng. Nó có thể sử dụng cho thiết kế, thi công, cũng như học tập và tham khảo.
Kết thúc: Hãy tải về để ứng dụng vào các dự án của bạn, hy vọng đây là tài liệu hữu ích đối với mọi người.
Khám phá thêm hàng nghìn mô hình PHOTOSHOP miễn phí khác!
Hãy truy cập ngay Thư viện PHOTOSHOP của chúng tôi để tải về những tài nguyên tuyệt vời, giúp nâng cao chất lượng và hiệu quả công việc của bạn!
<<<<< >>>>>