Ctrl+D

Đánh dấu để lưu lại

Tất cả

    SEARCH ITEMS

  • Thư viện Autocad
  • Thư viện Sketchup
  • Hồ sơ thiết kế
  • Thư viện 3ds max
  • Thư viện Lumion
  • Thư viện Revit
  • Thư viện Map
  • Thư viện Vật liệu - HDRI
  • Giáo trình học tập
  • Đồ án kiến trúc
  • Thư viện photoshop
  • Sách - Tạp chí kiến trúc
  • Phần mềm và Plugins
  • Phối cảnh 3D nội thất
  • Phối cảnh 3D ngoại thất

280. Hồ sơ thiết kế nhà phố 6 tầng tân cổ điển 4.5x14m full kiến trúc kiến cấu điện nước có thang máy

Trang chủ  >   Hồ sơ thiết kế >   Hồ sơ thiết kế nhà phố

  • 280. Hồ sơ thiết kế nhà phố 6 tầng tân cổ điển 4.5x14m full kiến trúc kiến cấu điện nước có thang máy
    • phu tran
    • 24-04-2025
    • 3
    • 1786
    • Chia sẻ bài viết này: 
    •  

    Có thể quan tâm

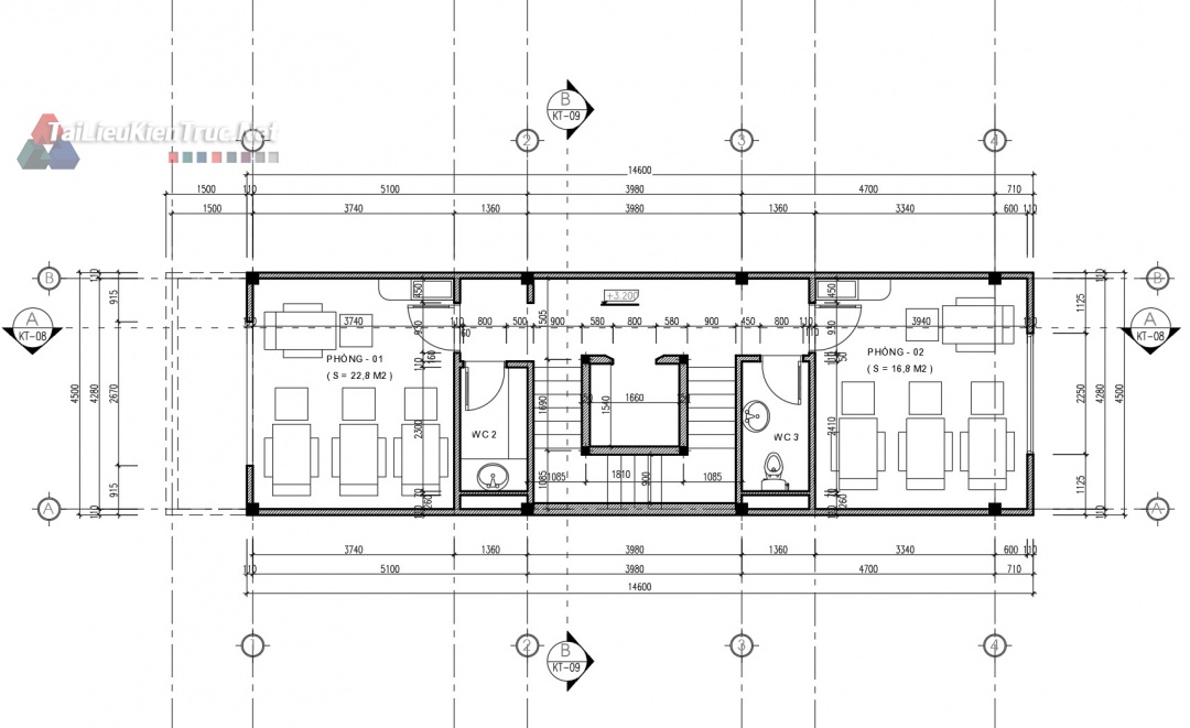
    280. Hồ sơ thiết kế nhà phố 6 tầng tân cổ điển 4.5x14m full kiến trúc kiến cấu điện nước

    Nhà ở kết hợp kinh doanh Spa với Công năng:

    Tầng 1: Lễ tân, kho, phòng kỹ thuật, vệ sinh

    Tầng 2 đến tầng 4: Phòng spa, vệ sinh

    Tầng 5: 2 phòng ngủ khép kín

    Tầng 6: Phòng khách, bếp ăn, vệ sinh

    Tầng tum: sân thượng, giặt phơi

     




















     

    Tài liệu liên quan

    Quảng cáo