Định dạng: zip
Dung lượng file: 362 KB


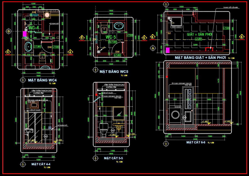
Tài liệu này cung cấp cái nhìn chi tiết về các bản vẽ thiết kế nhà vệ sinh hiện đại và tiện nghi. Đây là một công cụ hữu ích cho các nhà thiết kế và kiến trúc sư trong việc lập kế hoạch và bố trí không gian cho công trình.
Hình ảnh cho thấy sơ đồ mặt bằng của các nhà vệ sinh với các chi tiết rõ ràng và cụ thể. Các mặt cắt và kích thước được biểu diễn một cách chi tiết giúp người xem dễ dàng hình dung về không gian thực tế.
Đặc điểm nổi bật:
• Chất lượng chuyên nghiệp: Bản vẽ được thiết kế tinh vi, cung cấp thông tin rõ ràng và chính xác.
• Dễ dàng sử dụng: Các ký hiệu và chú thích dễ hiểu, giúp người xem nắm bắt nhanh chóng.
• Tương thích nhiều phần mềm: Có sẵn ở định dạng phổ biến, dễ dàng tích hợp vào các công cụ thiết kế khác.
• Tiết kiệm thời gian thiết kế: Cung cấp sẵn cấu trúc cơ bản giúp đẩy nhanh quá trình thiết kế.
Ứng dụng thực tế bao gồm hỗ trợ thiết kế và thi công, giúp tối ưu hóa không gian và tạo ra môi trường sinh hoạt thoải mái cho người sử dụng. Các chi tiết kỹ thuật như kích thước cụ thể từng phòng, vật liệu sử dụng làm tăng tính ứng dụng và hiệu quả thực thi.
Giá trị chuyên nghiệp: Bản vẽ này đặc biệt hữu ích cho các chuyên gia trong lĩnh vực kiến trúc và xây dựng, có thể sử dụng trong thiết kế, thi công, học tập và tham khảo.
Bản vẽ này đáng để tải về và sử dụng trong các dự án thiết kế của bạn nhằm đạt hiệu suất cao nhất.
Khám phá thêm hàng nghìn mô hình AUTOCAD miễn phí khác!
Hãy truy cập ngay Thư viện AUTOCAD của chúng tôi để tải về những tài nguyên tuyệt vời, giúp nâng cao chất lượng và hiệu quả công việc của bạn!
<<<<< >>>>>