Định dạng: rar
Dung lượng file: 191 KB



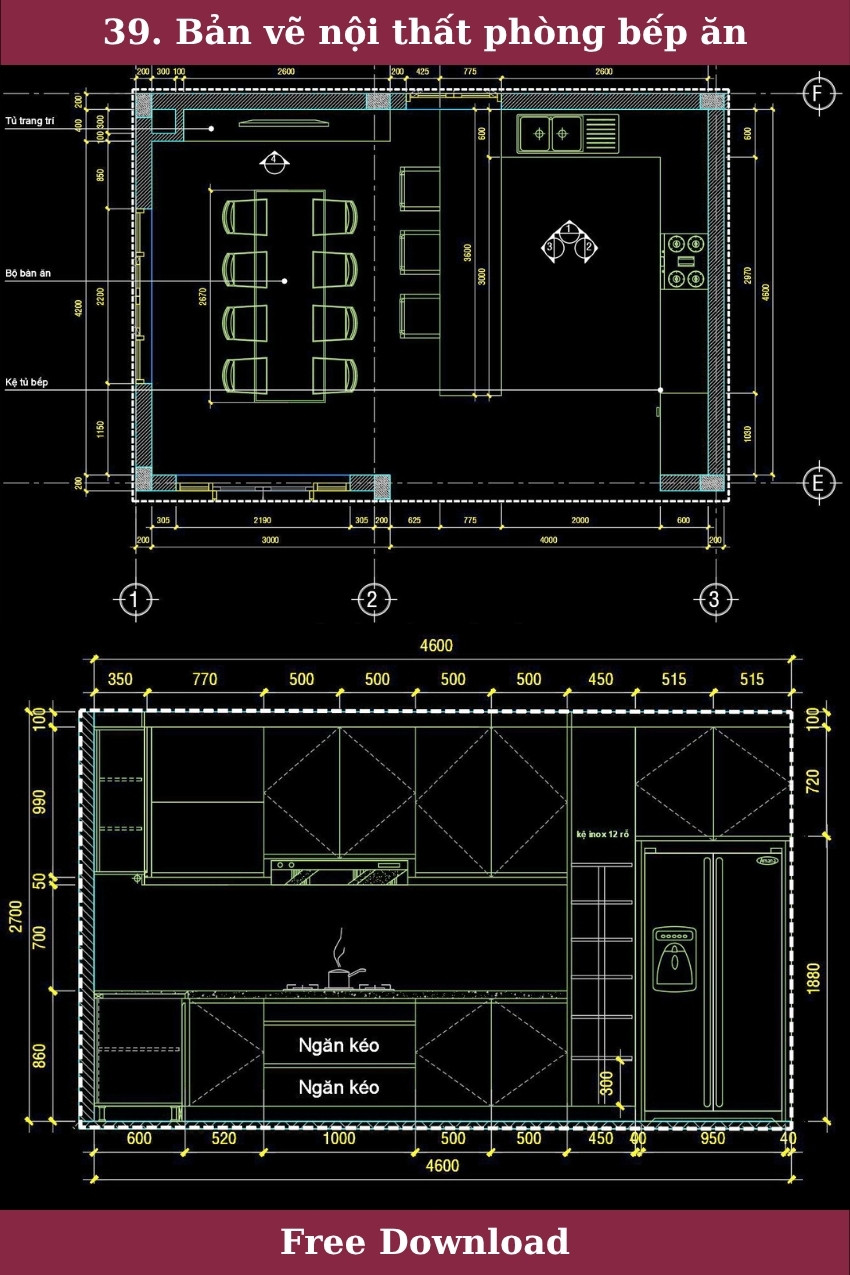
Tài liệu này cung cấp bản vẽ thiết kế nội thất phòng bếp ăn chi tiết, từ đó giúp người dùng dễ dàng lên kế hoạch và thực hiện các ý tưởng sáng tạo cho không gian sống của mình.
Bản vẽ cung cấp một cái nhìn tổng quan về bố trí và sắp xếp không gian bếp ăn một cách khoa học và tiện lợi. Có thể dễ dàng nhận thấy thiết kế này tối ưu hóa không gian, bao gồm vị trí các thiết bị, bàn ăn và các tủ kệ lưu trữ.
### Đặc điểm nổi bật:
• Chất lượng chuyên nghiệp: Bản vẽ được thiết kế tỉ mỉ, phù hợp cho cả các dự án sử dụng trong công trình lớn và nhỏ.
• Dễ dàng sử dụng: Các đường nét rõ ràng, ký hiệu đơn giản giúp người xem dễ dàng hiểu và triển khai.
• Tương thích nhiều phần mềm: Bản vẽ có thể được áp dụng trên các phần mềm thiết kế phổ biến hiện nay như AutoCAD, Revit, hoặc SketchUp.
• Tiết kiệm thời gian thiết kế: Người dùng có thể sử dụng bản vẽ như một nền tảng cơ bản để tùy chỉnh theo nhu cầu của mình.
Bản vẽ này không chỉ được sử dụng trong thiết kế và thi công mà còn phù hợp cho các hoạt động học tập và nghiên cứu trong ngành kiến trúc, nội thất. Khách hàng có thể nhanh chóng hình dung được cách bố trí không gian và dễ dàng điều chỉnh sao cho phù hợp với nhu cầu sử dụng.
Về chi tiết kỹ thuật, bản vẽ cung cấp các kích thước cụ thể cho từng phần của phòng bếp ăn: từ tủ trang trí, bộ bàn ăn đến kệ tủ bếp; đảm bảo độ chính xác cao trong quá trình thi công. Vật liệu và phong cách thiết kế có thể được tùy chỉnh để phù hợp với sở thích cá nhân và phong cách chung của ngôi nhà.
### Giá trị chuyên nghiệp:
Bản vẽ này đặc biệt hữu ích cho các chuyên gia trong lĩnh vực kiến trúc và xây dựng, giúp thiết kế và thi công dễ dàng hơn. Nó cũng là một tài liệu tham khảo quý giá cho việc học tập và nghiên cứu.
Hãy tải về để ứng dụng vào các dự án của bạn, hy vọng đây là tài liệu hữu ích đối với mọi người.
Khám phá thêm hàng nghìn mô hình AUTOCAD miễn phí khác!
Hãy truy cập ngay Thư viện AUTOCAD của chúng tôi để tải về những tài nguyên tuyệt vời, giúp nâng cao chất lượng và hiệu quả công việc của bạn!
<<<<< >>>>>