Ctrl+D

Đánh dấu để lưu lại

Tất cả

    SEARCH ITEMS

  • Thư viện Autocad
  • Thư viện Sketchup
  • Hồ sơ thiết kế
  • Thư viện 3ds max
  • Thư viện Lumion
  • Thư viện Revit
  • Thư viện Map
  • Thư viện Vật liệu - HDRI
  • Giáo trình học tập
  • Đồ án kiến trúc
  • Thư viện photoshop
  • Sách - Tạp chí kiến trúc
  • Phần mềm và Plugins
  • Phối cảnh 3D nội thất
  • Phối cảnh 3D ngoại thất

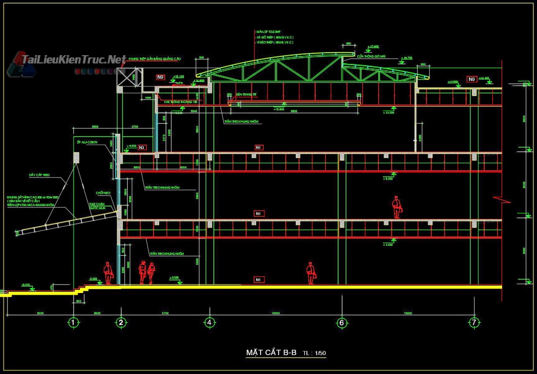
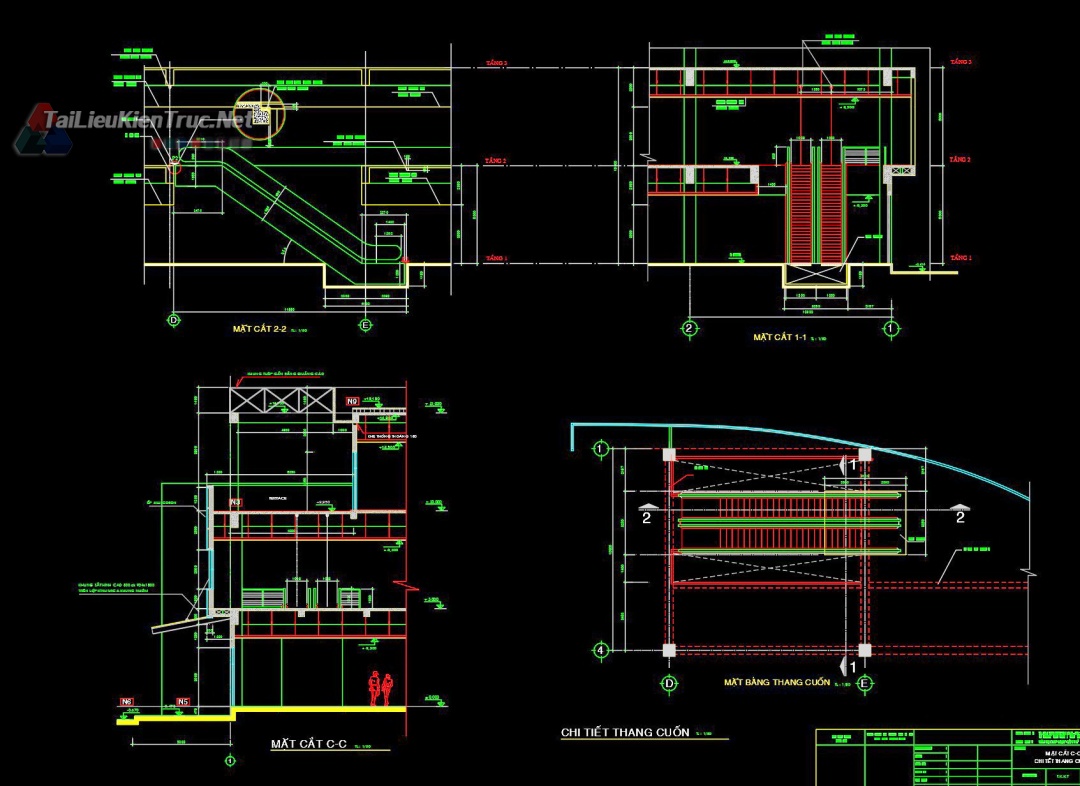
Hồ sơ thiết kế bản vẽ AutoCAD Trung tâm thương mại Sence City full kiến trúc, kết cấu

Trang chủ  >   Hồ sơ thiết kế >   TT Thương mại, siêu thị, chợ

  • Hồ sơ thiết kế bản vẽ AutoCAD Trung tâm thương mại Sence City full kiến trúc, kết cấu
  • Có thể quan tâm











    Hồ sơ thiết kế bản vẽ AutoCAD Trung tâm thương mại Sence City full kiến trúc, kết cấu

    Nguồn: Sưu tầm

    Tài liệu liên quan

    Quảng cáo