Ctrl+D

Đánh dấu để lưu lại

Tất cả

    SEARCH ITEMS

  • Thư viện Autocad
  • Thư viện Sketchup
  • Hồ sơ thiết kế
  • Thư viện 3ds max
  • Thư viện Lumion
  • Thư viện Revit
  • Thư viện Map
  • Thư viện Vật liệu - HDRI
  • Giáo trình học tập
  • Đồ án kiến trúc
  • Thư viện photoshop
  • Sách - Tạp chí kiến trúc
  • Phần mềm và Plugins
  • Phối cảnh 3D nội thất
  • Phối cảnh 3D ngoại thất

Hồ sơ thiết kế biệt thự 11x23m 3 tầng - 0014

Trang chủ  >   Hồ sơ thiết kế >   Hồ sơ thiết kế biệt thự

  • Hồ sơ thiết kế biệt thự 11x23m 3 tầng - 0014
  • Có thể quan tâm

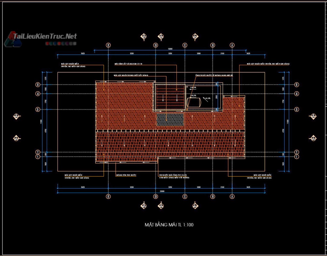
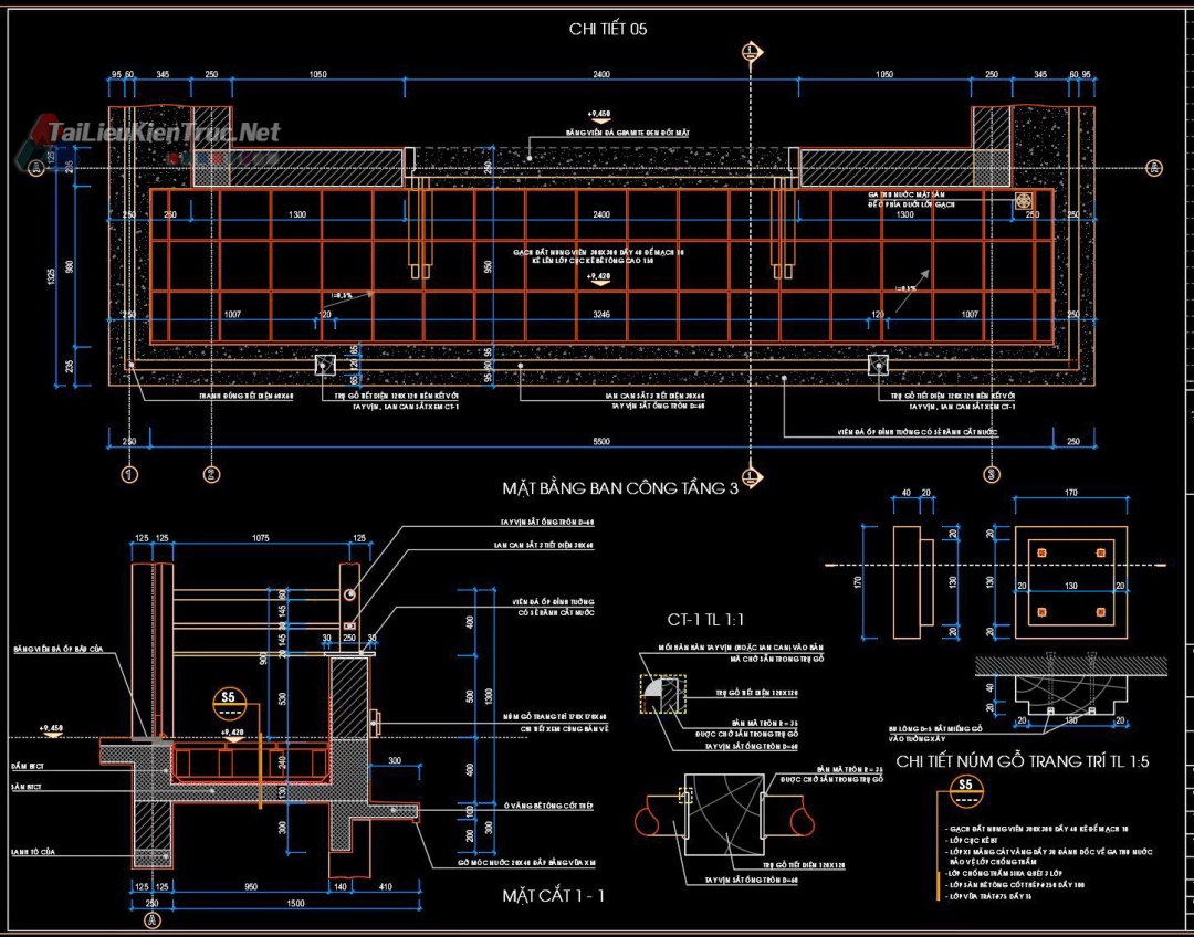
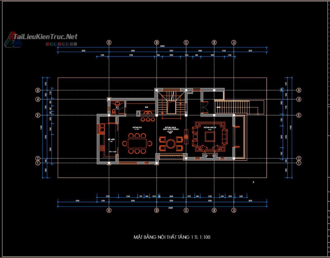
    Hồ sơ thiết kế biệt thự 11x23m 3 tầng nó có đầy đủ các bản vẽ chi tiết Kiến trúc




















     




     
    Phần hông nhà tầng 3 có bố trí ban công nhỏ làm điểm nhấn cho mặt bên nhưng nếu không muốn bạn cũng có thể thay vị trí này bằng cánh cửa nhỏ chạy dài theo thân nhà vẫn rất phù hợp. Kiểu kiến trúc biệt thự này tuy được thiết kế từ năm 2009 nhưng vẫn được rất nhiều người ưa chuộng do ưu điểm khoe được sự bề thế của công trình nhưng bố cục hài hòa, thanh cảnh..Đây cũng là một mẫu khá đầy đủ với các bản vẽ cụ thể về trần, mái, bản vẽ điện nước mà Blog đã sưu tầm được.
     
    Đối với những địa hình có mặt bằng thấp hơn nhiều so với cốt đường chính, bạn hay tham khảo mẫu biệt thự trên vì nó khá thích hợp để xây dựng. Bất lợi của thể đất khi khéo xử lý sẽ trở thành điểm thuận lợi, thay vì thiết kế gara xe ở ngoài hoặc song song với phòng khách, hãy bố trí gara dưới tầng hầm, ở gara có lối đi lên tầng trên, nếu còn diện tích có thể có 1 phòng làm nhà kho ở sát cầu thang. …
     

     

    Tài liệu liên quan

    Quảng cáo