Ctrl+D

Đánh dấu để lưu lại

Tất cả

    SEARCH ITEMS

  • Thư viện Autocad
  • Thư viện Sketchup
  • Hồ sơ thiết kế
  • Thư viện 3ds max
  • Thư viện Lumion
  • Thư viện Revit
  • Thư viện Map
  • Thư viện Vật liệu - HDRI
  • Giáo trình học tập
  • Đồ án kiến trúc
  • Thư viện photoshop
  • Sách - Tạp chí kiến trúc
  • Phần mềm và Plugins
  • Phối cảnh 3D nội thất
  • Phối cảnh 3D ngoại thất

21. bản vẽ chi tiết thang lan can tay vịn gỗ miễn phí

Trang chủ  >   Thư viện Autocad >   Bản vẽ chi tiết thang

  • 21. bản vẽ chi tiết thang lan can tay vịn gỗ miễn phí
    • TLKT
    • 02-10-2025
    • 3
    • 128
    • Chia sẻ bài viết này: 
    •  

    Có thể quan tâm

    Định dạng: rar
    Dung lượng file: 185 KB




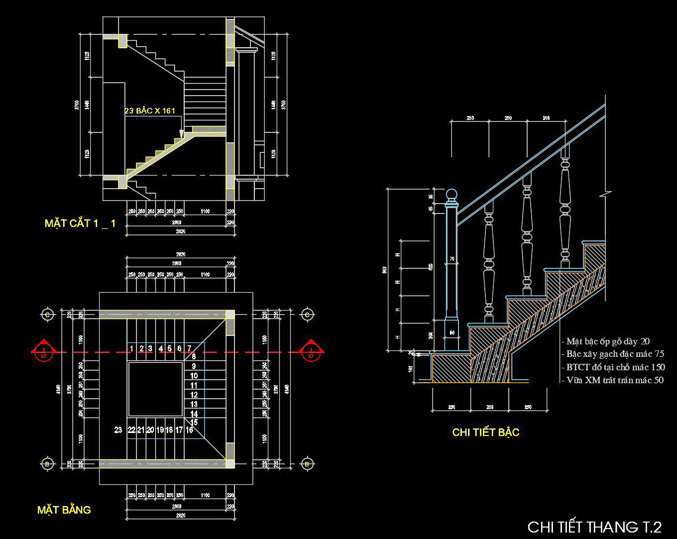
    bản vẽ chi tiết thang lan can tay vịn gỗ miễn phí

    Tài liệu này cung cấp bản vẽ chi tiết về thiết kế cầu thang lan can tay vịn gỗ, phù hợp cho các dự án kiến trúc và xây dựng hiện đại.

     

    Hình ảnh đầu tiên mô tả chi tiết từng phần của lan can tay vịn gỗ. Các bản vẽ được thể hiện rõ ràng, với các kích thước cụ thể, giúp người xem dễ dàng hình dung và áp dụng vào thực tiễn. Thiết kế không chỉ chú ý đến thẩm mỹ mà còn đảm bảo tính ổn định và an toàn trong quá trình sử dụng.

     

    - Đặc điểm nổi bật:
    Chất lượng chuyên nghiệp: Được trình bày với độ chính xác cao, từng chi tiết nhỏ nhất đều được mô tả chi tiết.
    Dễ dàng sử dụng: Các bản vẽ có thể dễ dàng tích hợp vào các phần mềm thiết kế kiến trúc thông dụng.
    Tương thích nhiều phần mềm: Định dạng file phù hợp với các phần mềm AutoCAD, SketchUp, đảm bảo tính linh hoạt trong thiết kế.
    Tiết kiệm thời gian thiết kế: Sử dụng các chi tiết tiêu chuẩn giúp tiết kiệm thời gian và công sức trong quá trình thiết kế.

     

    Ứng dụng của các bản vẽ này trải rộng từ công trình dân dụng nhỏ lẻ đến các dự án xây dựng lớn. Khi sử dụng chi tiết lan can tay vịn gỗ trong các thiết kế, kiến trúc sư có thể đảm bảo sự sang trọng và hài hòa cho không gian nội thất.

     

    Chi tiết kỹ thuật:
    - Kích thước tay vịn gỗ: 60 x 70
    - Vật liệu: gỗ tự nhiên cứng cáp
    - Kích thước tổng thể: Tham khảo các thông số chi tiết trên bản vẽ để có thông tin chính xác.

     

    Hình ảnh thứ hai cung cấp cái nhìn toàn diện về thiết kế cầu thang với cách bố trí hợp lý, dễ dàng đánh giá và thực hiện trong xây dựng. Từng bậc thang được thiết kế với kích thước chuẩn, đảm bảo độ an toàn và thuận tiện trong quá trình sử dụng.

     

    Giá trị chuyên nghiệp:
    Đối tượng sử dụng tài liệu này là các chuyên gia trong lĩnh vực kiến trúc và xây dựng, có thể ứng dụng trong thiết kế, thi công, học tập, và tham khảo.

     

    Hãy tải về để ứng dụng vào các dự án của bạn, hy vọng đây là tài liệu hữu ích đối với mọi người.


    Khám phá thêm hàng nghìn mô hình AUTOCAD miễn phí khác!

    Hãy truy cập ngay Thư viện AUTOCAD của chúng tôi để tải về những tài nguyên tuyệt vời, giúp nâng cao chất lượng và hiệu quả công việc của bạn!

    <<<<< >>>>>

    THƯ VIỆN AUTOCAD


    Tài liệu liên quan

    Quảng cáo